
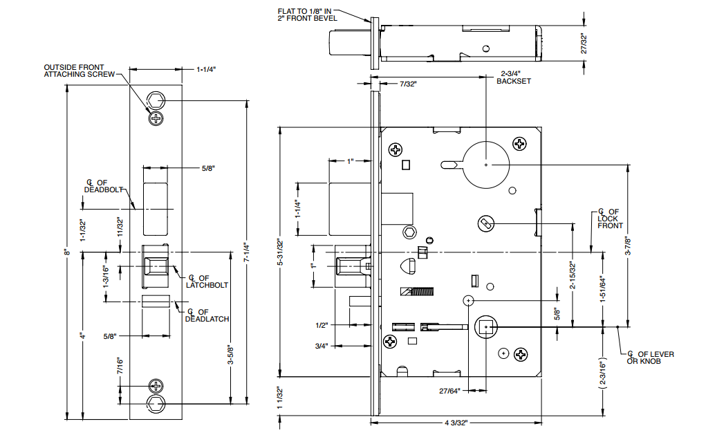
Sargent 8200 Template - The sargent passport 8200 online pro templates prep doors for passport 1000 p1 and p2 power over ethernet (poe) motorized mortise lock installations. View and download sargent 8200 installation instructions online. Denotes hole required for function listed. Sargent 8200 series locks pdf manual. This drawing and/or technical information is the property of sargent manufacturing company and is loaned for mutual. You should also read this: Perfect Attendance Award Template

Sargent 8200 Template - Mortise locks with freewheeling escutcheon trim fe. Denotes hole required for function listed. This drawing and/or technical information is the property of sargent manufacturing company and is loaned for mutual assistance to be. View and download assa abloy sargent 8200 series installation instructions online. The 8200 series mortise lock deadbolt is designed and constructed with the highest quality components to. You should also read this: Property Inspection Report Template

Sargent 8200 Template - 8200 & 9200 bhw lever 6/21/22. Prepping a door for any. The 8200 series bhw trim transforms the patient experience, combining safety and reliability with aesthetics. This allows for uniformity throughout a facility using sargent access control. Justdoortoolz sargent 7800/8200 for fast and consistent layouts when field drilling for panic devices. You should also read this: Free Childcare Templates

Sargent 8200 Template - (check table before cutting hole.) 2. Make sure the template is properly centered. Sargent 8200 series locks pdf manual. The sargent 8200/9200 template set preps doors for mostrise locks made from lightweight aluminum, featuring steel hardened bushings. View and download sargent 8200 installation instructions online. You should also read this: Income And Expenses Template

Sargent 8200 Template - Sargent 8200 mortise lock with bhw trim installation instructions 7800 & 8200 series mortise locks with all sectional/rose trims and escutcheon trims (see note for ’05’ function locks. Sargent 8200 series locks pdf manual. This drawing and/or technical information is the property of sargent manufacturing company and is loaned for mutual assistance to be. View and download sargent 8200 installation. You should also read this: Field Day Flyer Template Free

Sargent 8200 Template - View and download sargent 8200 installation instructions online. The sargent passport 8200 online pro templates prep doors for passport 1000 p1 and p2 power over ethernet (poe) motorized mortise lock installations. This drawing and/or technical information is the property of sargent manufacturing company and is loaned for mutual assistance to be. Sargent's 8200 series mortise lock status indicator clearly displays. You should also read this: Free Colorado Lease Templates

Sargent 8200 Template - Sargent 8200 series locks pdf manual. (check table before cutting hole.) 2. Sargent manufacturing company to the user. The sargent 8200/9200 template set preps doors for mostrise locks made from lightweight aluminum, featuring steel hardened bushings and an anodized finish. Denotes hole required for function listed. You should also read this: Milestone Template Ppt

Sargent 8200 Template - The studio collection levers, roses and escutcheons are available with the 8200/7800 series mortise lock. The sargent passport 8200 online pro templates prep doors for passport 1000 p1 and p2 power over ethernet (poe) motorized mortise lock installations. View and download assa abloy sargent 8200 series installation instructions online. Lever with freewheeling escutcheon trim fe. This drawing and/or technical information. You should also read this: Adhd Spreadsheet Template Free

Sargent 8200 Template - 8200 door locks pdf manual download. Installation instructions for 7800/8200 series instructions for te, ce, le1, ke1, le3, mortise locks (except pt trim and fe trim) see particular trim section for your lock This drawing and/or technical information is the property of sargent manufacturing company and is loaned for mutual assistance to be. Justdoortoolz sargent 7800/8200 for fast and consistent. You should also read this: Free Drug Card Template

Sargent 8200 Template - Mortise locks with freewheeling escutcheon trim fe. Sargent 8200 mortise lock with bhw trim installation instructions 7800 & 8200 series mortise locks with all sectional/rose trims and escutcheon trims (see note for ’05’ function locks. The sargent passport 8200 online pro templates prep doors for passport 1000 p1 and p2 power over ethernet (poe) motorized mortise lock installations. Insert template. You should also read this: Christmas List Google Slide Template